
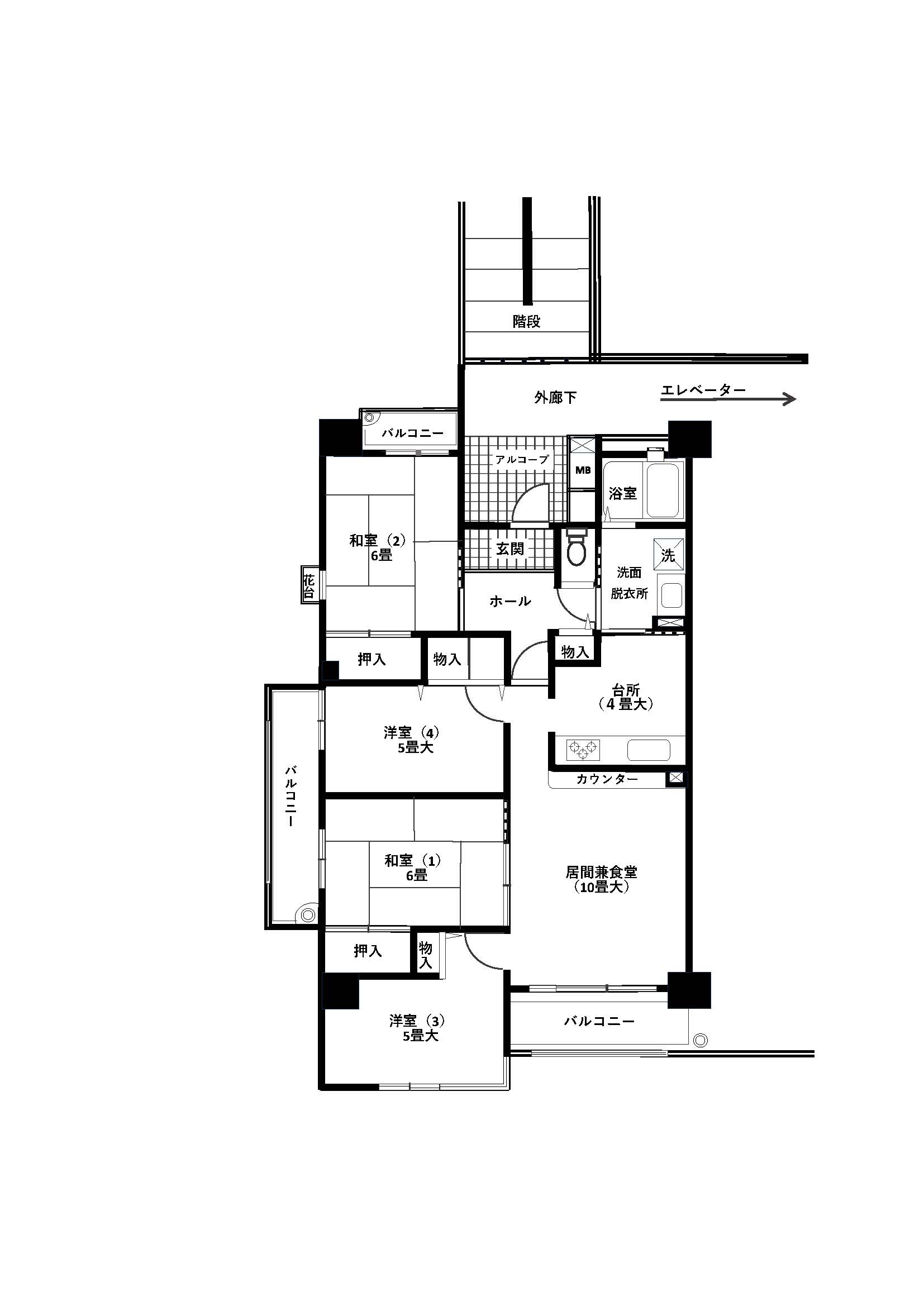
★サクラパーク大久保3階4LDKの角部屋。
★4LDKのマンションをお探しの方にオススメ。
★眺望良好でリビングから敷地内の緑が見えます。
★広めのキッチン
★広めの脱衣所
★広めの玄関
★対面システムキッチン
【間取り図】
【物件概要】
| 所在地 | 千葉県習志野市本大久保2丁目 |
| 交通 | 京成本線 / 京成大久保駅 徒歩11分 |
| その他 | JR津田沼駅に向かうバス バス停【大久保団地】停歩3分 |
| 専有面積 | 80.47m²(壁芯) |
| バルコニー | 12.60m² |
| 階数 | 3階 |
| 建物構造 | RC |
| 築年月 | 1993年5月 |
| 価格 | 2,680万円 |
| 取引態様 | 媒介 |
内見・お問合せ・資料請求
TEL:047-408-0340 担当:川上
人気記事
・現在販売中のサクラパーク大久保の物件一覧(随時更新)
・完飲!習志野市本大久保の【更科】のたぬきそばが美味しかった
・安くて美味しくて駐車場もあるパン屋さん【ぱんやPasso】









